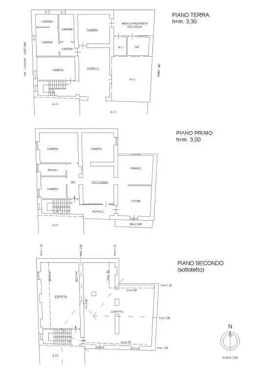
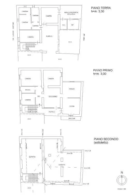
Nel meraviglioso borgo storico di Castiglione Olona, con impagabile vista sulla Chiesa della Collegiata proponiamo in vendita PORZIONE DI CASA.
L’ABITAZIONE principale si sviluppa su un unico livello al piano primo ed è composta da ampio SOGGIORNO, SALA DA PRANZO, CUCINA ABITABILE separata dotata di BALCONE, TRE spaziose CAMERE DA LETTO e BAGNO con vasca; mentre al piano terra collegati da un grande PORTICATO troviamo ulteriori ampi LOCALI ACCESSORI oltre al comodo BOX AUTO per il ricovero dell’autovettura.
Completa infine la proprietà l’ampio sottotetto.
– TERMOAUTONOMO
– NESSUNA SPESA COMUNE
Perfetta per chi cerca una soluzione nel suggestivo borgo storico di Castiglione Olona senza rinunciare alla propria indipendenza.
Contattaci per maggiori informazioni in merito e per fissare una visita alla casa

















