A Venegono Inferiore,
proponiamo in vendita ELEGANTE TRILOCALE situato nel cuore del Paese, in posizione centrale e comoda a tutti i principali servizi, con stazione F.N.M risulta raggiungibile in pochi minuti a piedi.
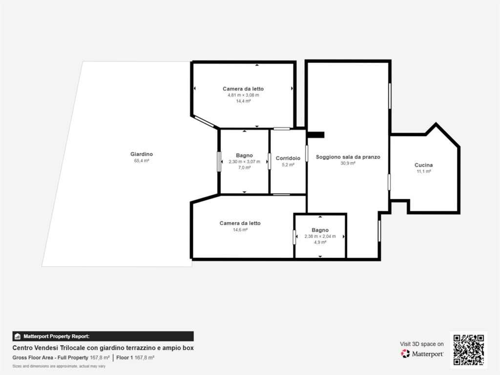
L’APPARTAMENTO, posto al piano terra, si distingue per ambienti ampi e ben distribuiti: la luminosa zona giorno è composta da un’accogliente SALA e da una CUCINA ABITABILE, entrambe con accesso diretto a un gradevole TERRAZZINO di circa 9 mq esposto a sud, ideale per momenti di relax all’aperto.
La zona notte, ben separata, comprende DUE CAMERE DA LETTO rifinite con parquet e DUE BAGNI. Le camere affacciano su un piacevole GIARDINO PRIVATO di circa 50 mq, perfetto per chi desidera uno spazio verde riservato.
Completano la proprietà una CANTINA al piano interrato e un ampio BOX DOPPIO, adatto al ricovero di due autovetture di medie dimensioni.
Soluzione ideale per chi cerca comfort, eleganza e tranquillità senza rinunciare alla comodità del centro.
Affrettati a contattarci per ulteriori informazioni o per fissare un appuntamento per un sopralluogo al prossimo OPEN HOUSE fissato il 16 maggio 2026 dalle ore 09:30 alle 12:30 SU PRENOTAZIONE




























