Benvenuti nel futuro della vita urbana, dove l’indipendenza trova la sua casa!
Vi presentiamo con entusiasmo il nostro prossimo progetto, un’opera architettonica che rivoluzionerà il concetto di abitare, offrendo una gamma straordinaria di appartamenti indipendenti, dove la vostra tranquillità è la nostra priorità.
Questo cantiere abbraccia l’essenza della libertà abitativa. Ogni unità abitativa è concepita come un rifugio autonomo, dove gli inquilini possono godere di totale privacy e libertà. Gli appartamenti indipendenti rappresentano il culmine di uno stile di vita moderno, abbracciando la tendenza verso spazi personali, plasmando il proprio ambiente in armonia con i propri desideri e esigenze.
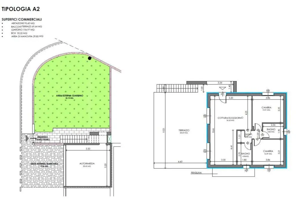
Composizione :
TRILOCALE posto al piano primo con giardino privato. Una soluzione progettata con uno stile moderno e contemporaneo, che vi offrirà comfort e funzionalità senza rinunciare all’eleganza.
All’entrata siamo accolti da un’ampia zona living con doppio affaccio sull’ampio terrazzo di 66 mq e la cucina a vista; proseguendo nella zona notte al medesimo piano, troviamo due comode camere da letto e due bagni entrambi finestrati.
Completa la proprietà l’autorimessa al piano terreno per il ricovero comodo di due autovetture affiancate e possibilità di ulteriori due posti auto di proprietà di fronte alla propria basculante.
SUPERFICI COMMERCIALI:
– APPARTAMENTO: mq. 95 lordi
– GIARDINO: mq. 107
– AUTORIMESSA: mq. 30
– TERRAZZO: mq. 66
– POSTO AUTO/MANOVRA: mq. 30
Caratteristiche principali:
Ingressi Indipendenti: Ogni appartamento gode di un ingresso privato, garantendo la massima separazione e riservatezza.
Zero Spese Condominiali: Qui non troverete spese condominiali mensili, né dovrete partecipare a noiose assemblee condominiali. Ogni proprietario gestisce autonomamente la manutenzione della propria unità, permettendovi di risparmiare e avere un controllo completo sul vostro spazio.
Architettura Moderna: La tecnologia all’avanguardia è parte integrante di ogni appartamento, consentendo un controllo completo e personalizzato dell’ambiente domestico. La sicurezza, la connettività e l’efficienza energetica sono al centro di ogni soluzione proposta, garantendo una vita indipendente senza sacrificare il comfort e la modernità.
Spazi Esterni Privati: Ogni unità abitativa dispone di spazi esterni privati, come giardini o terrazze, dove potrete godere di momenti di relax e intrattenimento in famiglia o con amici.
Spazi Personalizzabili: Offriamo la possibilità di personalizzare gli spazi interni in base alle vostre esigenze, garantendo che il vostro nuovo appartamento rispecchi il vostro stile di vita. Le unità abitative sono progettate con attenzione ai dettagli, offrendo soluzioni abitative su misura per chi cerca una vita senza compromessi. Gli spazi interni sono ampi, luminosi e flessibili, con l’obiettivo di soddisfare ogni esigenza di vita quotidiana.
Prenotate la Vostra Visita:
Siamo aperti per visite guidate, entusiasti di mostrarvi il futuro della vostra casa. Contattateci oggi stesso per fissare un appuntamento.
Non perdete l’opportunità di essere parte di questa esclusiva comunità di appartamenti indipendenti.
La vostra nuova casa vi aspetta!

































